Doppelkindergarten und Tagesstruktur, Matt, Wil
| Bearbeitung | 2024 |
| Programm | Neubau |
| Projektstatus | Projektwettbewerb im offenen Verfahren |
Die weitläufige Schulanlage Wil Matt beeindruckt durch ihre klassischen architektonischen Qualitäten: Das alte Schulhaus von Ospelt Strehlau Architekten (1964) widerspiegelt die Bestrebungen der funktionalen Moderne der 1970er Jahre und orientiert sich mit seinen rationell und kompakt organisierten Klassenzimmern nach Südosten. Der elegante Erweiterungsbau der Architekten Weber + Hofer (2010) auf der Nordseite fasst das Areal geschickt ein und definiert den zentralen Hartplatz und die Lage des Sportplatzes. Im Jahr 2024 wünschte die Stadt Wil einen Entwurf für einen Doppelkindergarten und eine Tagesstruktur, der den heutigen Bedürfnissen der Nutzerinnen und Nutzer entspricht und auf die veränderten Bedürfnisse künftiger Generationen reagieren kann. Gefragt waren möglichst einfache Strukturen für gute Betriebsabläufe, aber auch Räume, die den Kindern eine familiäre Atmosphäre vermitteln. Einerseits wurde eine Entflechtung der Verkehrsströme gewünscht, andererseits wurden Synergien bei Toiletten und Arbeitsräumen, Büros oder Besprechungsräumen gesucht. Die Wettbewerbsteilnehmer mussten den idealen Standort für die zukünftigen Bauten innerhalb des Areals selbst bestimmen.
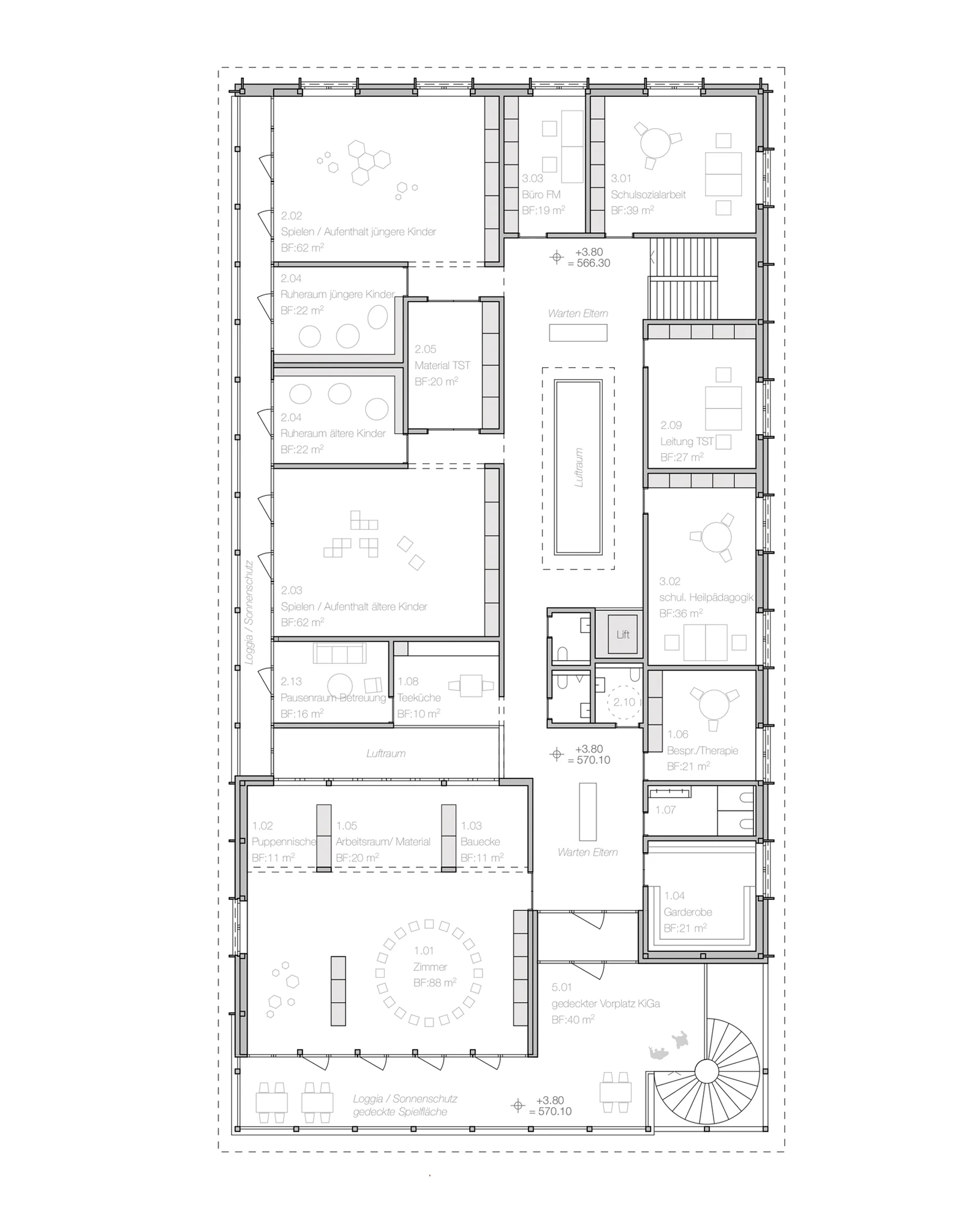
Das Schulgelände ist grundsätzlich in zwei Ebenen gegliedert: Schule und Sammelplatz sowie Sportplatz und Sportwiese. Die Verbindung zwischen den beiden Ebenen erfolgt über eine Rampe und eine Sitzstufenanlage. Der Neubau überbrückt als drittes Element ebenfalls diese beiden Ebenen, wobei das natürliche Gefälle des bestehenden Geländes rundum beibehalten wird. Die alte, stark sanierungsbedürftige Tagesstruktur an der Rosenstrasse wird abgebrochen, um das Areal nach Westen hin zu öffnen und an die benachbarte Wohnzone anzuschliessen. Dadurch wird das Areal aus allen Richtungen, auch von Westen her, grosszügig erschlossen. Der architektonische Ausdruck des Gebäudes basiert auf einer Holzkonstruktion mit einem Raster von 2.4 Meter um eine modulare Fertigung zu ermöglichen. In diesem Raster sind die unterschiedlichen Nutzflächen zweigeschossig in Funktionseinheiten organisiert: Die beiden Kindergärten orientieren sich mit ihren grossflächigen, überdachten Terrassen nach Süden, während die Tagesstruktur die funktionale Nähe zum nördlich gelegenen Pausenhof/Spielplatz sucht und direkt an einen abgetrennten Spielgarten im westlichen Grundstücksteil anschliesst.