Fassade und Eingangshalle Neubau Spital Schaffhausen
| Bearbeitung | 2019-2021 bei BOLLHALDER WALSER ARCHITEKTUR |
| Programm | Neubau |
| Projektstatus | Vorprojekt / Bauprojekt |
| Ort | Geissbergstrasse 81 | 8208 Schaffhausen |
| Mitarbeit bei | Bollhalder Walser Architektur, St.Gallen |
| Position | Teilprojektleiter |
| Leistungen | Planung Fassaden und Eingangshalle: Gestaltungskonzept, Entwurf, Detailplanung |
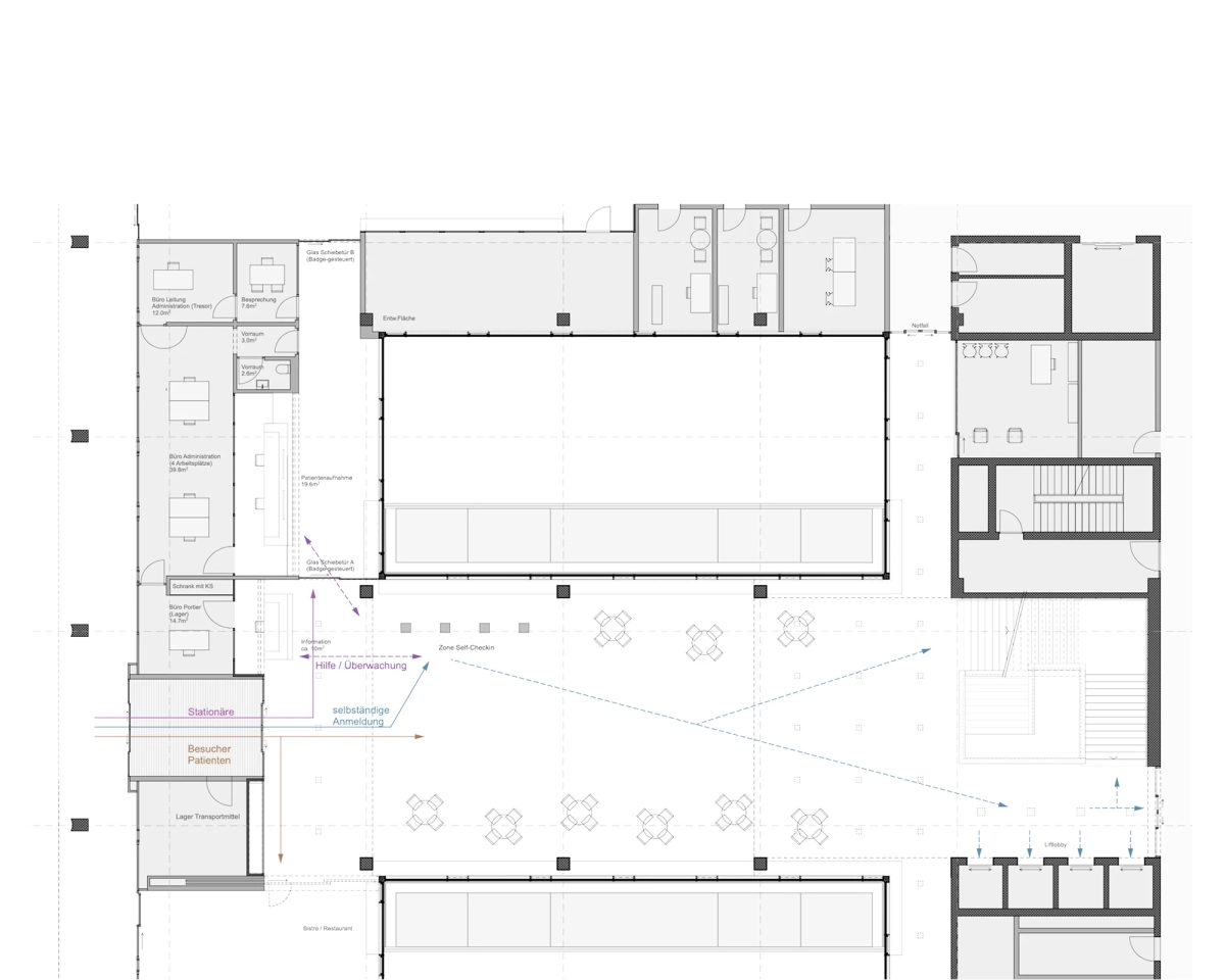
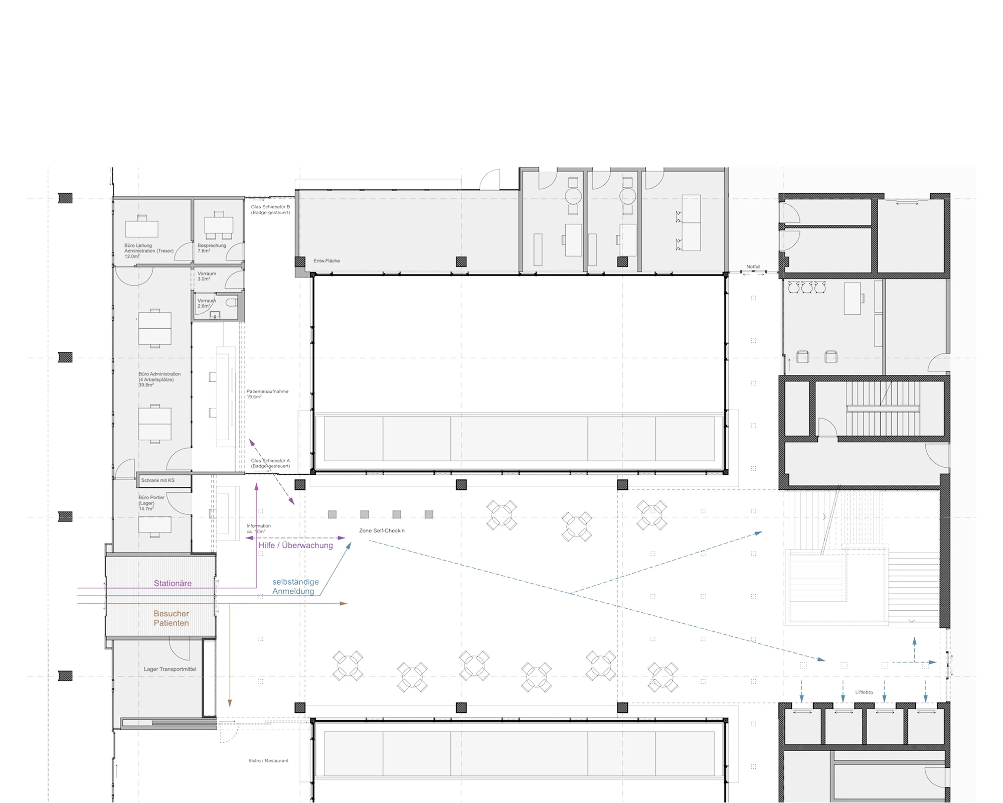
Das Projektteam Bollhalder Eberle Architektur gewann zusammen mit Itten+Brechbühl AG den selektiven Projektwettbewerb für den Neubau des Kantonsspitals Schaffhausen mit einem gut organisierten, kompakten, quadratischen Rasterbau. Aus Kosten- und Nutzungsgründen verlangte die Bauherrschaft jedoch in einer zweijährigen Vorprojektphase eine Optimierung des Projektes. So mussten die Fassaden (Aussen- und Innenhöfe) und die öffentliche Eingangshalle konstruktiv und gestalterisch überarbeitet werden, und zwar in Bezug auf das Gesamtbild, die Proportionen und die Detaillösungen.
Auf den ersten Blick nimmt man das gesamte Volumen als ungegliederte Einheit wahr. Deckenstirnseiten und Brüstungen sind mit weissen, konkav geformten Zementplatten verkleidet, so dass das Gesamtbild ruhig wie eine grosse, offene Wasserfläche im leichten Wind zu wogen scheint. Die massiven, rein dekorativen Verkleidungselemente zwischen den Fenstereinfassungen aus Aluminium (Wettbewerbsstand) konnten entfernt und zu einer leichten Kette zusammengefügt werden. Die Wahrnehmung der so entstandenen Fassade wird zu einem Wechselspiel von «Leichtigkeit und Schwere», von kompakter Haut und differenzierter Tiefe.