Beratung Wohnungsausbau, Felsenstrasse, St.Gallen
| Bearbeitung | 2022–2023 |
| Programm | Innenausbau |
| Projektstatus | Realisiert |
| Ort | Felsenstrasse, 9000 St.Gallen |
| Auftragsart | Direktauftrag |
| Auftraggeber | Dr. med. dent. Gabor Roza |
| Leistungen | Bauberatung, Detailplanung |
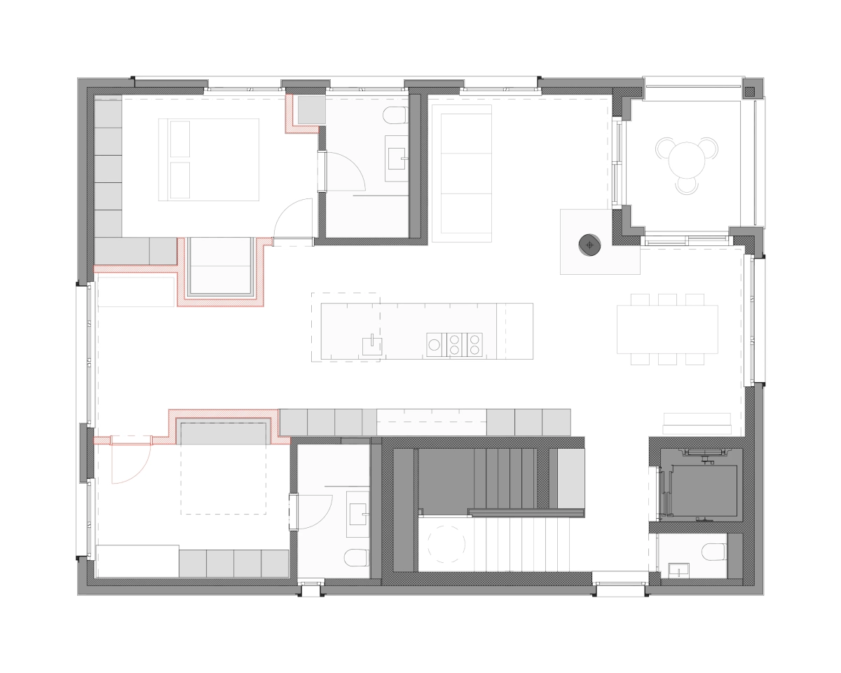
Während der Rohbauphase von drei neuen Mehrfamilienhäusern an der Felsenstrasse im Zentrum von St. Gallen bat Dr. Roza um Beratung und Planungsunterstützung für den Ausbau seiner Attikawohnung. Um eine optimale Raumaufteilung zu schaffen, die seinem Lebensstil entspricht, mussten Wände versetzt sowie neue Nischen und Stürze eingebaut werden. Auch bei der anspruchsvollen Festlegung der Oberflächenmaterialien und deren Anschlussdetails war die Unterstützung eines Architekten gefragt.
Das Haus und der dazugehörige Wohnkomplex wurden nach kommerziellen Baustandards entworfen. Gleichzeitig sind die Mittel für eine individuelle Gestaltung begrenzt. Als Antwort auf die eingeschränkte Ausgangssituation werden die Räume auf das Wesentliche für den Nutzer umstrukturiert. Der Bauherr legt viel Wert auf eine naturnahe Lebesweise, wonach sich die Raumgestaltung mit natürlichen Materialien orientiert. So bilden schwarz-grauer Basalt (Abdeckung Arbeitsflächen der Küche), Lehm- und Kalkputze sowie ein in die Wandfläche eingelassener Massivholzsockel aus Eiche die «dritte Haut» des anspruchsvollen Bauherrn.