Erweiterung Zahnarztpraxis Roza, Neumarkt 5, St.Gallen
| Bearbeitung | 2022–2023 |
| Programm | Mieterausbau / Umbau |
| Projektstatus | Realisiert |
| Ort | Kornhausstrasse 28, Neumarkt 5, 9000 St.Gallen |
| Auftragsart | Direktauftrag |
| Auftraggeber | Dr. med. dent. Gabor Roza |
| Leistungen | Gesamtplanung, Kostenkontrolle, Bauleitung |
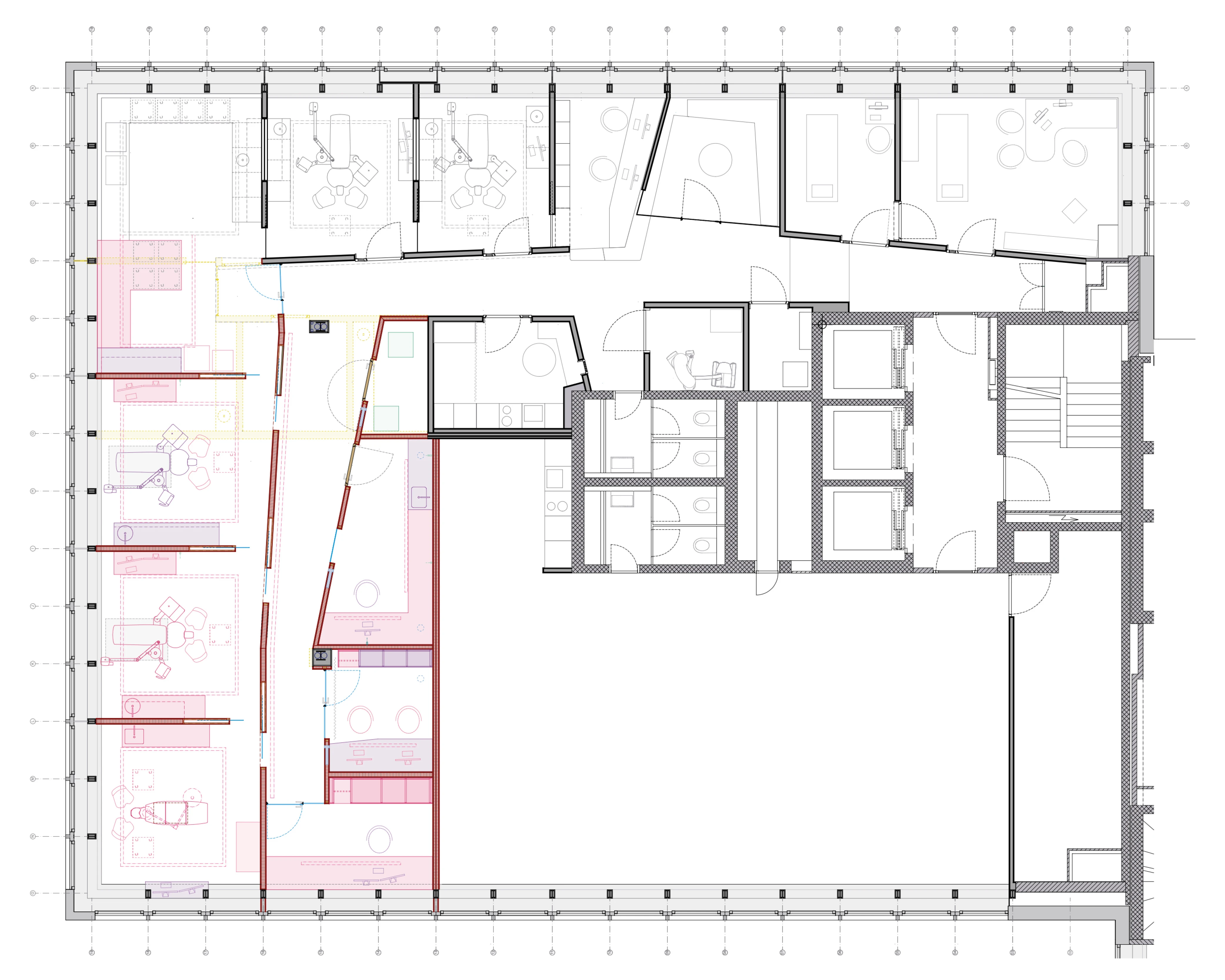
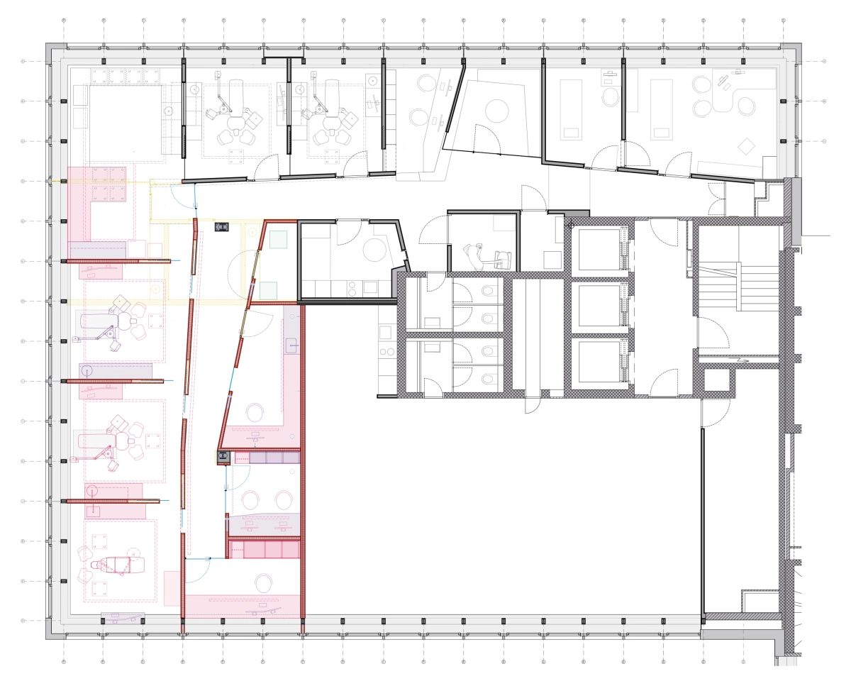
2017/18 plante und erweiterte das Büro Jeanette Geissmann Architektur die Arztpraxis Thun & Zahnmedizin Roza. Aufgrund der hohen Patientenzahl und um gleichzeitig das Ärzteteam erweitern zu können, entschied sich Dr. Roza für eine Erweiterung der gemieteten Räumlichkeiten. Ab April 2023 wird die Praxis ihre Patientinnen und Patienten in drei neuen Behandlungszimmern betreuen und mehr Platz für die Arbeit des Praxisteams bieten: neues Büro, Labor, Steri, Technikraum. Dr. Rozas Wunsch war es, möglichst viele Möbel aus dem abgebrochenen alten Praxisteil in die neu geplanten Räume zu integrieren.
Die vorhandene Raumstruktur lässt sich gut erweitern. Die vom orthogonalen Gebäuderaster abweichenden Flurwände erzeugen eine subtile Dynamik: Auf dem Weg zu den Behandlungsräumen fühlt man sich eingeladen und nimmt unbewusst das Wechselspiel von weiten und engen Raumsituationen wahr. Mit den dunklen Wandflächen wirkt diese Raumfolge wie eine abstrahierte Höhle, hinter deren Öffnungen mit Glasschiebetüren der lichtdurchflutete Technikbereich der Zahnmedizin zum Eintreten lockt. Die Behandlungszimmer sind nach dem Stützenraster des Bürogebäude zugeschnitten und sind mit einem versteckten Sterilkorridor miteinander verbunden. Dieser Korridor, der der leichten Abwinklung des Flurs folgt, ist das architektonische Herzstück des Bauwerks.