Wohnüberbauung beim alten Kloster, Surselva, Ilanz
| Bearbeitung | 2015–2016 bei MIERTA & KURT LAZZARINI ARCHITEKTEN |
| Programm | Neubau / Umbau |
| Projektstatus | Studienwettbewerb im selektiven Verfahren / 2. Rang |
| Ort | Spitalareal, Surselva, Ilanz |
| Mitarbeit bei | Mierta & Kurt Lazzarini Architekten, Samedan |
| Position | Projektleiter |
| Leistungen | Projektidee, Entwurf |
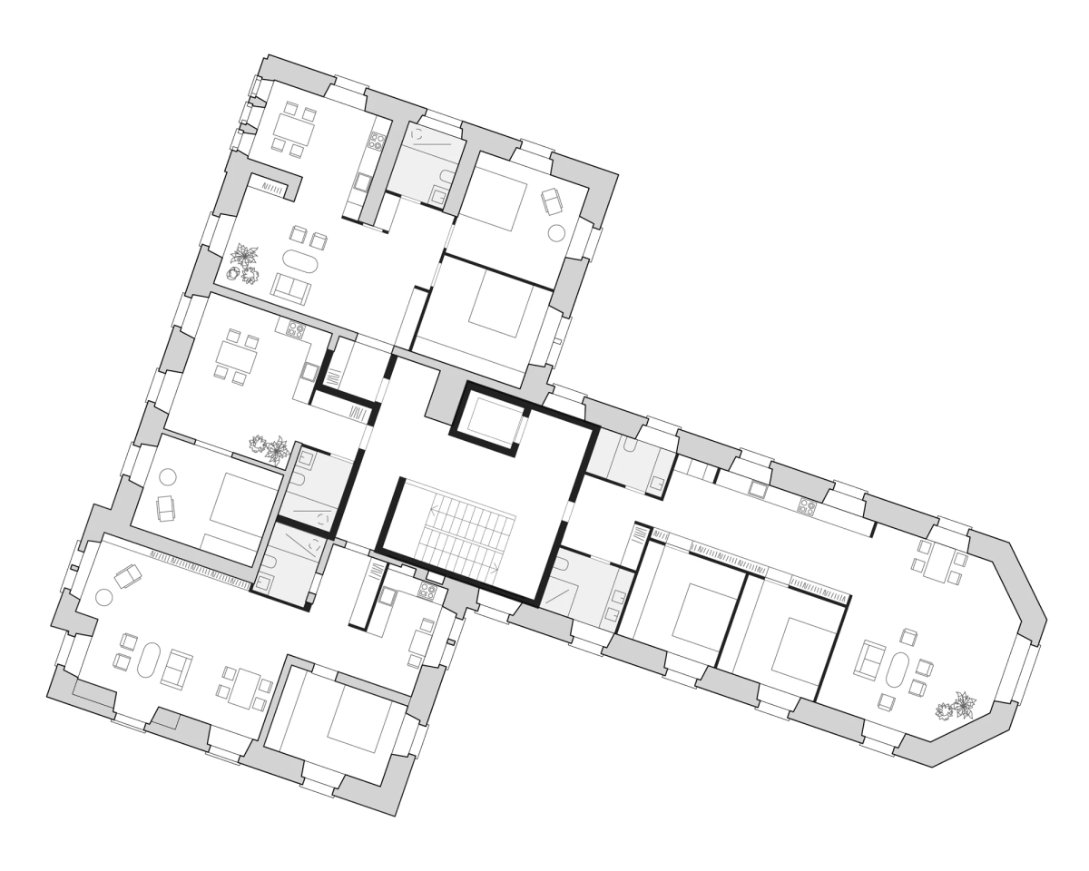
Die Investoren des Projekts «Residenza St. Joseph» haben die Parzelle des ehemaligen Dominikanerklosters im Ilanzer Ortsteil Sontga Clau in unmittelbarer Nachbarschaft zum Regionalspital für eine flächenintensive Wohnüberbauung erworben. Die Aufgabe bestand darin, ein städtebaulich plausibles Konzept für eine altersgerechte Wohnüberbauung mit ca. 65 Wohneinheiten zu erarbeiten, wobei die Nachbarschaft zum Spital bei Bedarf Betreuung, Pflege und erweiterte Dienstleistungen anbieten kann.
Die Symbiose von Kloster, ehemaligem Spital und Felsengarten ist ein einzigartiges und wertvolles Zeitzeugnis. Die verbleibende bebaubare Grundstücksfläche ist jedoch so klein, dass zur Schaffung von ausreichend Wohnfläche in die Höhe gebaut werden muss. Mit der Form eines Turmes werden Vorstellungen von Sicherheit, Geborgenheit und Eleganz verbunden, die den Anforderungen an das Wohnen im Alter entsprechen. Ähnlich wie alte Burgruinen, die mit der Zeit Teil der Landschaft werden, kann sich der Turm durch seine Materialisierung in den natürlichen Kontext des Hanges einfügen. Mit seinem geneigten Gründach setzt er ein deutliches Zeichen für die Besonderheit dieses Ortes, den einzigartigen Felsengarten.